Добро пожаловать на http://vipplan.ru

Випплан Амурск - это тысячи проектов домов в нашем каталоге!

Вы всегда сможете найти для себя проект дома вашей мечты! Даже если этого не случилось, мы готовы в любую минуту предложить проект индивидуального дома.

Забыли пароль?
Вы еще не регистрировались?

Перейдите по ссылке ниже на страницу регистрации.

Регистрация...

Внимание!!!

В проектную документацию могут быть внесены изменения любой сложности, в соответствии в Вашими пожеланиями!

Полезные статьи

Закладка фундамента дома

Закладка фундамента является одним из первых и самых главных этапов строительства любого дома. Все здание опирается именно на эту часть конструкции. Поэтому главная функция фундамента заключается в том, чтобы нести на себе весь вес несущих стен и кровли, а значит предотвращать появление перекоса стен, проседание сооружения, что неизбежно приводит к образованию трещин в стенах здания и в фундаменте....

Сборные фундаменты

В наше время все большую популярность при строительстве дома приобретают сборные бетонные и железобетонные блоки. Их использование значительно сокращает время работ и снижает их трудоемкость....

Проекты домов и коттеджей > Каталог проектов домов > Проект загородного дома из забутовочного кирпича Vg1454

Проект загородного дома из забутовочного кирпича Vg1454

Проект загородного дома из забутовочного кирпича
Зарегистрируйтесь

Проект № Vg1454


Техническое описание
Общая площадь: 150.09 м2
Жилая площадь: 83.98 м2
Высота здания: 8.86 м
Размеры дома: 12.96м×11.86м
Кол-во комнат: 4
Цокольный этаж: нет
Гараж: нет
Мансарда: нет

Kонструкция
Фундамент: ленточный
Перекрытия: деревянные балки
Материал стен: Кирпич

Архитектурный раздел
Конструктивный раздел
АР+КР - 52 000 (Со скидкой 20%)
Проект индивидуального двухэтажного жилого дома с размерами здания 12,960 x 11,86 м. Наружная отделка здания – штукатурка ( двух цветов). Фундамент – ленточный монолитный (под несушими стенами). Наружные стены – забутовочный кирпич, с утеплением и отделкой штукатуркой. Внутренние стены - забутовочный кирпич. Перегородки –забутовочный кирпич. Пол первого этажа - пол по грунту, деревянные балки. Межэтажное и чердачное перекрытие- деревянные балки. Крыша четырехскатная. Кровля – металлочерепица. Окна — металлопластиковые
Генплан застройки участка / Паспорт проекта 7000 руб / 10000 руб
Инженерный раздел (полный) 75000 руб
Смета на строительство 37500 руб
Теплотехнический расчет материалов стен Бесплатно
Стоимость проекта со незначительнми изменениями 61250 руб
Стоимость проекта со средними изменениями* 72500 руб
Стоимость проекта со значительными изменениями** 75500 руб

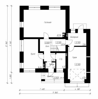
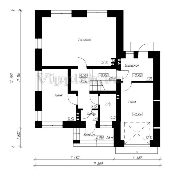
План первого этажа


Тамбур — 1,83 м2
Холл — 9,75 м2
С/у — 4,12 м2
Кухня — 14,54 м2
Гостиная — 32,76 м2
Бойлерная — 7,04 м2
Гараж — 17,10 м2

Проект загородного дома из забутовочного кирпича

Проект загородного дома из забутовочного кирпича

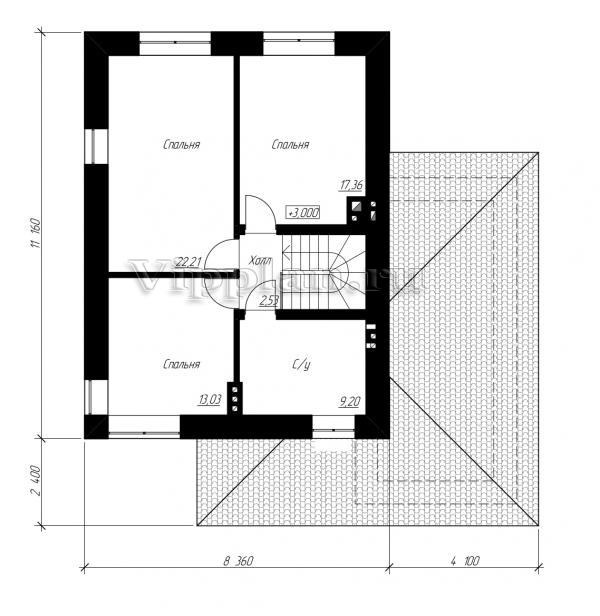
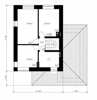
План второго этажа


Холл — 2,53 м2
Спальня — 17,36 м2
Спальня — 22,21 м2
Спальня — 13,03 м2
С/у — 9,20 м2
Проект загородного дома из забутовочного кирпича Проект загородного дома из забутовочного кирпича Проект загородного дома из забутовочного кирпича Проект загородного дома из забутовочного кирпича

Модификации проектов

Внесение изменений и привязка к участку строительства

В любой из проектов от компании VIPplan - Амурск по вашему желанию могут быть внесены изменения в материалы стен, материалы наружной отделки дома, а также будет произведена адаптация проекта под конкретный регион строительства (с учетом грунтов региона, геологических особенностей вашего участка и местных климатических условий) - БЕСПЛАТНО !!! (кроме проектов со скидкой и проектов наших партнеров).

Любой из проектов, размещенных на сайте amursk.vipplan.ru мы можем выполнить из требуемых вам строительных материалов: ячеистый бетон (газобетон, пеноблок), керамоблок, кирпич, шлакоблок, бетонный блок, дерево (брус, клееный брус), каркасная технология (деревянный каркас, металлокаркас (ЛСТК)).

Фасад дома и его наружную отделку так же возможно выполнить с применением различных облицовочных материалов: структурной штукатурки, (с утеплителем и без), сайдингом (пластиковый или металлосайдинг), фиброплитами, кирпича.

 
6 Избранные
проекты

Доставка проектов по России: Москва (Московская область), Санкт-Петербург (Ленинградская область), Краснодар, Ростов-на-Дону, Ставрополь, Сочи, Волгоград, Новосибирск, Белгород, Брянск, Воронеж, Саратов, Хабаровск, Астрахань, Нальчик, Владикавказ, Екатеринбург, Тюмень, Самара, Нижний Новгород, Казань, Пермь, Уфа, Челябинск, Красноярск, Ханты-Мансийск, Иркутск, Курган, Оренбург, Омск, Томск, Барнаул, Новокузнецк, Кемерово, Абакан, Чита, Якутск, Южно-Сахалинск, Петропавловск-Камчатский и страны ближнего зарубежья: Белоруссия, Украина, Казахстан