Добро пожаловать на http://vipplan.ru

Випплан Амурск - это тысячи проектов домов в нашем каталоге!

Вы всегда сможете найти для себя проект дома вашей мечты! Даже если этого не случилось, мы готовы в любую минуту предложить проект индивидуального дома.

Забыли пароль?
Вы еще не регистрировались?

Перейдите по ссылке ниже на страницу регистрации.

Регистрация...

Внимание!!!

В проектную документацию могут быть внесены изменения любой сложности, в соответствии в Вашими пожеланиями!

Полезные статьи

Зачем нужен проект дома?

Зачем нужен проект? - спросите вы. Проект дома является важной и неотъемлемой частью при строительстве дома. После покупки проекта, вы получите разрешение на строительство, предоставив его в местную архитектуру, а после, с его помощью, построите дом....

Закладка фундамента дома

Закладка фундамента является одним из первых и самых главных этапов строительства любого дома. Все здание опирается именно на эту часть конструкции. Поэтому главная функция фундамента заключается в том, чтобы нести на себе весь вес несущих стен и кровли, а значит предотвращать появление перекоса стен, проседание сооружения, что неизбежно приводит к образованию трещин в стенах здания и в фундаменте....

Проекты домов и коттеджей > Каталог проектов домов > Дом с мансардой, гаражом и террасой Vg1093

Дом с мансардой, гаражом и террасой Vg1093

Дом с мансардой, гаражом и террасой
Зарегистрируйтесь

Проект № Vg1093


Техническое описание
Общая площадь: 159.4 м2
Жилая площадь: 70.93 м2
Высота здания: 8.84 м
Размеры дома: 16.98м×8.1м
Кол-во комнат: 4
Цокольный этаж: нет
Гараж: нет
Мансарда: есть

Kонструкция
Фундамент: Ленточный, монолитный ж/б
Перекрытия: Деревянные
Материал стен: Опалубка

Архитектурный раздел
Конструктивный раздел
АР+КР - 56 000 (Со скидкой 20%)
Проект индивидуального одноэтажного жилого дома с мансардой с размерами 16,98 x 8,10 м. Наружная отделка здания – декоративная штукатурка. Цоколь - камень. Фундамент – ленточный, монолитный ж/б. Наружные стены запроектированы из: несъемной опалубки и штукатурки. Внутренние стены – несъемная опалубка. Перегородки - из гипсокартона. Перекрытие межэтажное — по деревянным балком с использованием утеплителя в межбалочном пространстве. Пол 1 этажа - пол по грунту. Крыша - многоскатная. Материал кровли - металлочерепица. Окна - металлопластиковые, выполненные по индивидуальному заказу. Лестница выполняется по индивидуальному заказу.
Генплан застройки участка / Паспорт проекта 7000 руб / 10000 руб
Инженерный раздел (полный) 79500 руб
Смета на строительство 39750 руб
Теплотехнический расчет материалов стен Бесплатно
Стоимость проекта со незначительнми изменениями 66000 руб
Стоимость проекта со средними изменениями* 78000 руб
Стоимость проекта со значительными изменениями** 81100 руб

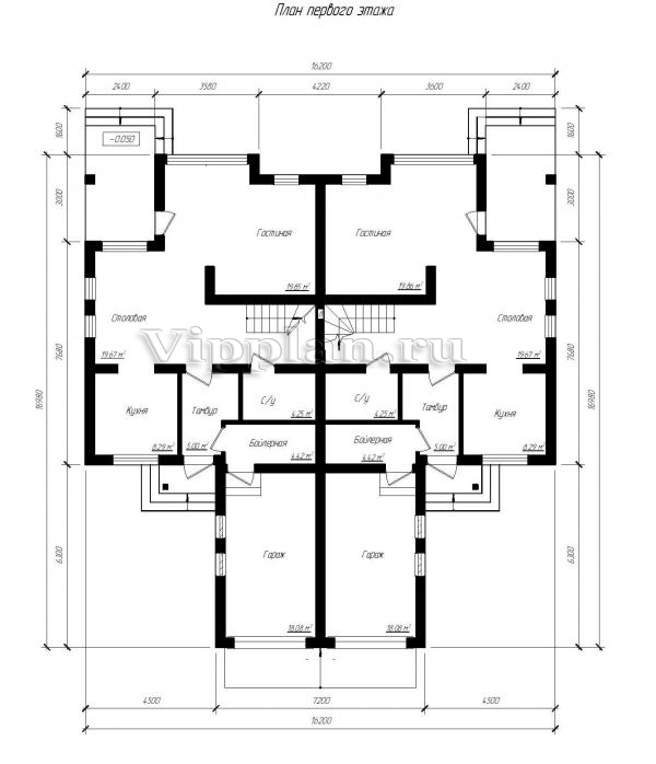
План первого этажа


Гараж — 18,08 кв м
Гостиная — 19,85 кв м
Столовая — 19,67 кв м
Кухня — 8,29 кв м
Тамбур — 5,00 кв м
Бойлерная — 4,42 кв м
С/у — 4,25 кв м

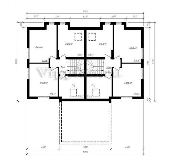
План мансардного этажа


Спальня — 15,14 кв м
С/у — 10,36 кв м
Спальня — 17,16 кв м
Холл — 3,81 кв м
Спальня — 17,43 кв м
Дом с мансардой, гаражом и террасой Дом с мансардой, гаражом и террасой Дом с мансардой, гаражом и террасой Дом с мансардой, гаражом и террасой

Модификации проектов

Внесение изменений и привязка к участку строительства

В любой из проектов от компании VIPplan - Амурск по вашему желанию могут быть внесены изменения в материалы стен, материалы наружной отделки дома, а также будет произведена адаптация проекта под конкретный регион строительства (с учетом грунтов региона, геологических особенностей вашего участка и местных климатических условий) - БЕСПЛАТНО !!! (кроме проектов со скидкой и проектов наших партнеров).

Любой из проектов, размещенных на сайте amursk.vipplan.ru мы можем выполнить из требуемых вам строительных материалов: ячеистый бетон (газобетон, пеноблок), керамоблок, кирпич, шлакоблок, бетонный блок, дерево (брус, клееный брус), каркасная технология (деревянный каркас, металлокаркас (ЛСТК)).

Фасад дома и его наружную отделку так же возможно выполнить с применением различных облицовочных материалов: структурной штукатурки, (с утеплителем и без), сайдингом (пластиковый или металлосайдинг), фиброплитами, кирпича.

 
6 Избранные
проекты

Доставка проектов по России: Москва (Московская область), Санкт-Петербург (Ленинградская область), Краснодар, Ростов-на-Дону, Ставрополь, Сочи, Волгоград, Новосибирск, Белгород, Брянск, Воронеж, Саратов, Хабаровск, Астрахань, Нальчик, Владикавказ, Екатеринбург, Тюмень, Самара, Нижний Новгород, Казань, Пермь, Уфа, Челябинск, Красноярск, Ханты-Мансийск, Иркутск, Курган, Оренбург, Омск, Томск, Барнаул, Новокузнецк, Кемерово, Абакан, Чита, Якутск, Южно-Сахалинск, Петропавловск-Камчатский и страны ближнего зарубежья: Белоруссия, Украина, Казахстан